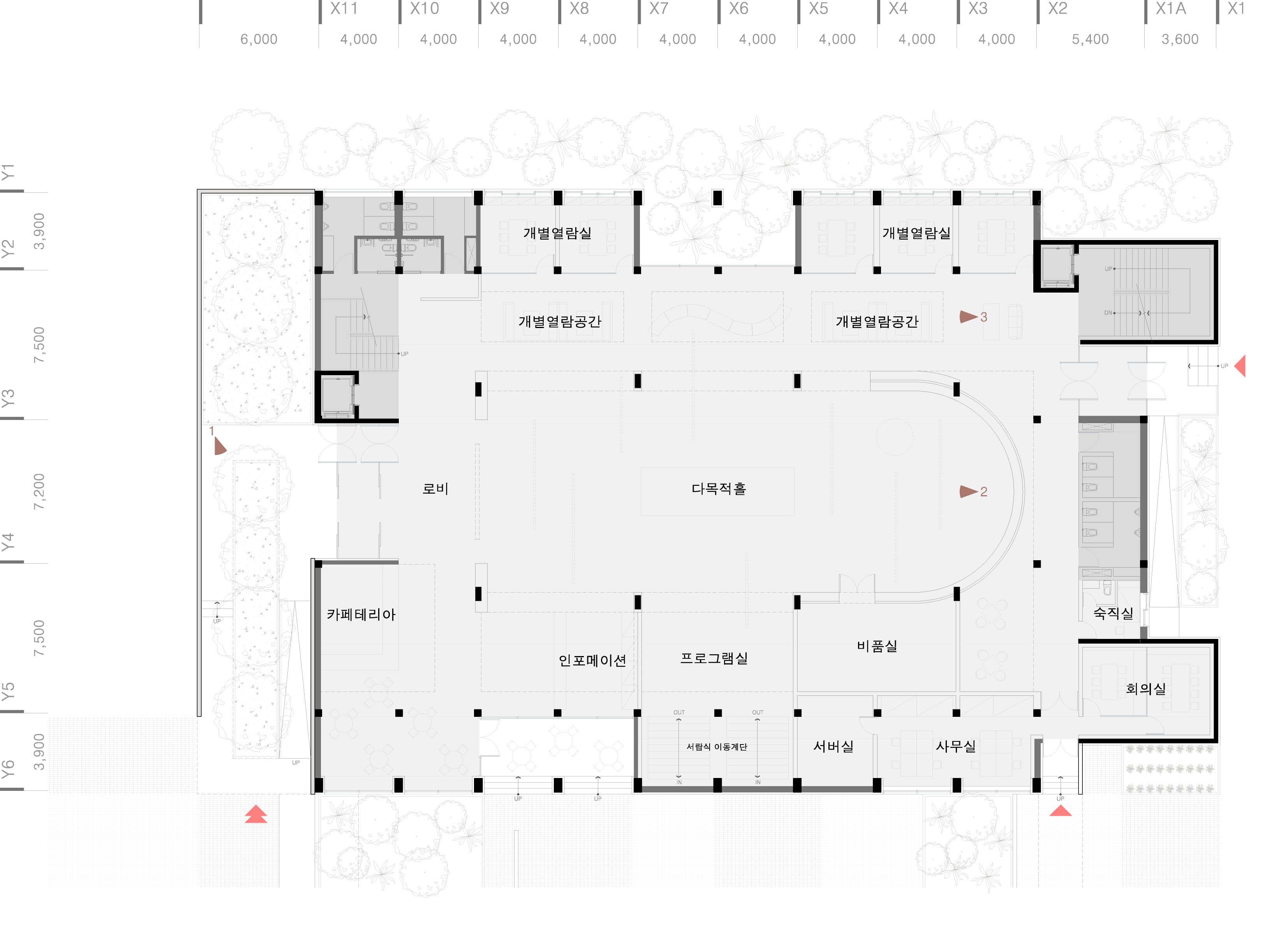
Hwaseong Library Competition
2023
Location : Donghwa-ri, Hwaseong
Program : Library
Floor : 1F - 2F
Gross Floor Area : 5390.70m2
Design by : -
Photo by : -
