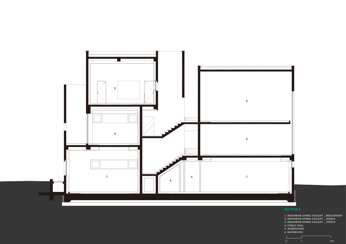
Hey-ri Calms Office Building
2021
Location : Hey-ri, Paju
Program :
Office Building
Floor : 1F - 3F
Gross Floor Area : 623.79m2
Design by : Lee Yong Seong
Photo by : -














