Thirdplace Hongeun 1
2019
_GOOD DESIGN AWARD (2024)
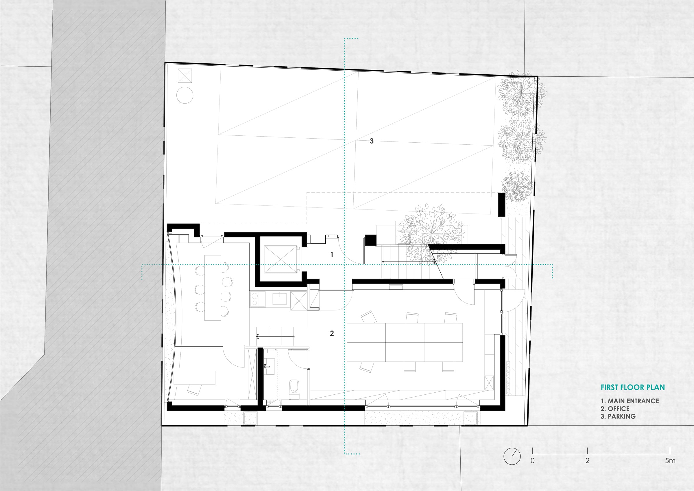
Location : Hongeun-dong, Seoul
Program : Co-housing
Gross Floor Area : 286.31m2
Floor : 1F - 4F
Design by : Kwon Hyun Soo, Lee Yong Seong
Photo by : Kim Joo Young

















