Seongsan-dong Narrow House
2016
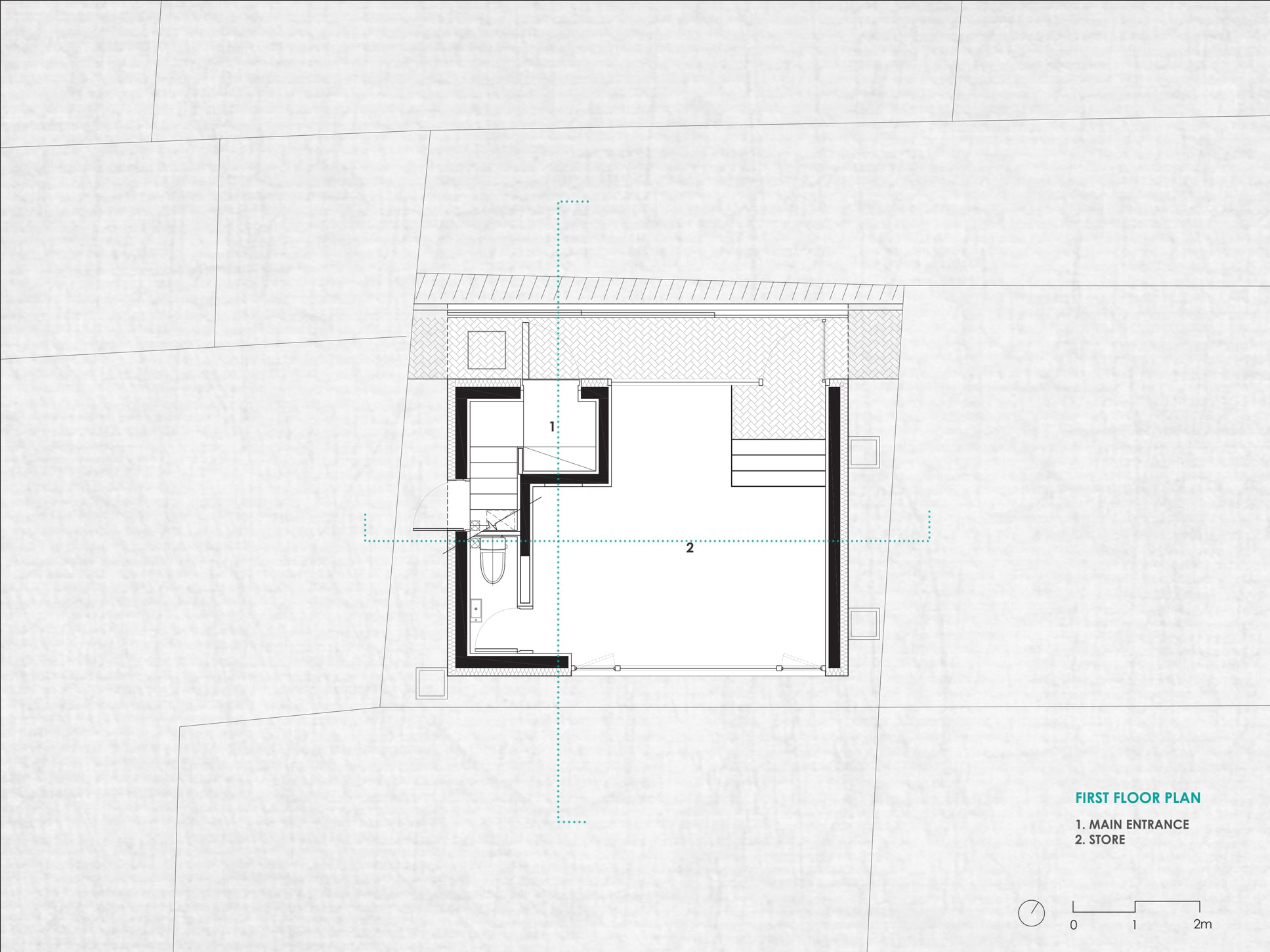
Location : Seongsan-dong, Seoul
Program : House
Gross Floor Area : 78.64m2
Floor : 1F - 3F
Design by :
Park Go Eun
Photo by : Jin Hyo Suk





























